板式换热器

什么是板式换热器?
板式换热器,又称板式换热器
板框式换热器是一种新型高效换热器,由一系列波纹状金属板组成。板材之间形成薄的矩形通道,通过板材进行热交换。板式换热器是液体对液体换热或液体对气体换热的理想设备。板式换热器由于体积小,传热效率高,在生活热水中产生了很大的影响,在组合锅炉中也得到了广泛的应用。
一般板式换热器有两种类型——较大的商用板式换热器用途
垫圈在平原之间,而较小的一个趋于
钎焊的.波纹的形式也有两种类型:交替波纹和人字形波纹。当压降增大时,人字形波纹会产生更大的强化传热效果,因此比互生波纹的应用更广泛。
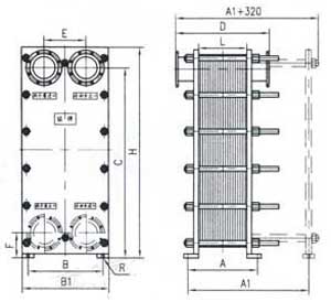
板式换热器结构
板式换热器应用
板式换热器已广泛应用于冶金、矿山、石油、化工、电力、医药、食品、化纤、造纸、纺织、船舶、采暖等部门。已用于冷却、加热、蒸发、冷凝、灭菌、余热回收等多种工况。
板式换热器优点
- 传热效率高
- 热损失小
- 结构紧凑,重量轻
- 节约空间
- 安装和清洗方便
- 广泛应用
- 使用寿命长
钎焊板换热器
安森钎焊板换热器参数
| 最低工作温度 |
-160℃ |
| 最高工作温度 |
+ 225℃ |
| 最低工作压力 |
真空 |
| 最小工作压力(媒介) |
3.2 mpa |
| 最大工作压力(水) |
2.5 mpa |
| 单通道体积 |
0.4升 |
| 最大流量 |
105 m³/ h |
| 循环组合 |
单路/双路 |
安森板式换热器设计
安森板式换热器的设计和建造都是为了
ASME和
API要求,其他标准也可用。以下是安森BR严肃板式换热器的部分规格。
BR1.6系列
| 板的大小 |
1995×980×0.7 |
| 单一板传热面积:㎡ |
1.6 |
| 板间距:毫米 |
4.1 |
| 单通道截面面积:㎡ |
0.00325 |
| 最大容量:m³/ h |
760 |
| 操作温度:℃ |
≤180 |
| 操作压力:MPa |
0.6, 1.0 |
| 角孔直径:毫米 |
300 |
f =356 e =600 b1 =1140 h =2405 r =15
| 不。 |
总传热面积(㎡) |
板数量 |
L(毫米) |
D |
A1 |
重量 |
| 1 |
120 |
77 |
315 |
1015 |
1175 |
4635 |
| 2 |
130 |
83 |
340 |
1040 |
1210 |
4742 |
| 3. |
140 |
89 |
365 |
1065 |
1250 |
4852 |
| 4 |
150 |
95 |
390 |
1090 |
1290 |
4903 |
| 5 |
180 |
115 |
471 |
1170 |
1430 |
5172 |
| 6 |
200 |
127 |
521 |
1220 |
1515 |
5334 |
| 7 |
225 |
143 |
586 |
1285 |
1620 |
5547 |
| 8 |
250 |
159 |
652 |
1350 |
1740 |
5764 |
| 9 |
300 |
189 |
775 |
1475 |
1940 |
6165 |
| 10 |
350 |
221 |
906 |
1605 |
2160 |
6595 |
| 11 |
400 |
251 |
1030 |
1730 |
2375 |
7000 |
BR1.3系列
| 板的大小 |
1770×980×0.7 |
| 单一板传热面积:㎡ |
1.304 |
| 板间距:毫米 |
4.1 |
| 单通道截面面积:㎡ |
0.00291 |
| 最大容量:m³/ h |
760 |
| 操作温度:℃ |
≤180 |
| 操作压力:MPa |
0.6, 1.0 |
| 角孔直径:毫米 |
300 |
b =810 c =1749 f =356 e =600 b1 =1140 h =2180 r =15
| 不。 |
总传热面积(㎡) |
板数量 |
L(毫米) |
D |
A1 |
重量 |
| 1 |
One hundred. |
77 |
316 |
1016 |
1175 |
4235 |
| 2 |
110 |
85 |
348 |
1050 |
1030 |
4277 |
| 3. |
120 |
93 |
381 |
1080 |
1280 |
4430 |
| 4 |
130 |
101 |
414 |
1115 |
1335 |
4525 |
| 5 |
140 |
109 |
447 |
1156 |
1390 |
4625 |
| 6 |
150 |
117 |
480 |
1180 |
1450 |
4723 |
| 7 |
180 |
139 |
570 |
1270 |
1600 |
4990 |
| 8 |
200 |
155 |
635 |
1335 |
1705 |
5182 |
| 9 |
220 |
171 |
701 |
1400 |
1820 |
5378 |
| 10 |
250 |
193 |
791 |
1490 |
1970 |
5645 |
| 11 |
300 |
231 |
947 |
1650 |
2235 |
6105 |
BR1.0系列
| 板的大小 |
1975×722×0.7 |
| 单一板传热面积:㎡ |
1.07 |
| 板间距:毫米 |
3.8 |
| 单通道截面面积:㎡ |
0.00254 |
| 最大容量:m³/ h |
150 - 500 |
| 法兰直径:DN mm |
225 |
| 操作温度:℃ |
≤180 |
| 操作压力:MPa |
0.6, 1.0 |
| 角孔直径:毫米 |
230 |
B=760 c =1927 f =252 e =425 b1 =880 h =2140 r =13
| 不。 |
总传热面积(㎡) |
板数量 |
L(毫米) |
D |
一个 |
A1 |
重量 |
| 1 |
70 |
71 |
270 |
730 |
490 |
995 |
2318/2412 |
| 2 |
80 |
81 |
308 |
770 |
528 |
1055 |
2412/2513 |
| 3. |
90 |
91 |
342 |
802 |
562 |
1130 |
2505/2617 |
| 4 |
One hundred. |
101 |
384 |
845 |
604 |
1195 |
2600/2778 |
| 5 |
110 |
111 |
418 |
880 |
638 |
1270 |
2690/2822 |
| 6 |
120 |
121 |
460 |
920 |
680 |
1330 |
2787/2922 |
| 7 |
140 |
141 |
536 |
995 |
756 |
1470 |
2974/3128 |
| 8 |
150 |
151 |
574 |
1035 |
794 |
1545 |
3067/3232 |
| 9 |
160 |
161 |
612 |
1070 |
832 |
1605 |
3160/3336 |
| 10 |
180 |
181 |
688 |
1150 |
908 |
1745 |
3348/3538 |
| 11 |
200 |
201 |
764 |
1225 |
984 |
1885 |
3535/3742 |
| 12 |
210 |
211 |
802 |
1260 |
1022 |
1955 |
3628/3845 |
| 13 |
220 |
221 |
840 |
1300 |
1060 |
2020 |
3722/3947 |
| 14 |
230 |
231 |
878 |
1340 |
1098 |
2095 |
3815/4050 |
BR0.50系列
| 板的大小 |
1500×460×0.6 |
| 单一板传热面积:㎡ |
0.5 |
| 板间距:毫米 |
4.6 |
| 单通道截面面积:㎡ |
0.00167 |
| 最大容量:m³/ h |
80 - 250 |
| 法兰直径:DN mm |
125 |
| 操作温度:℃ |
≤180 |
| 操作压力:MPa |
0.6, 1.0 |
| 角孔直径:毫米 |
135 |
B=510 c =1465 f =177 e =260 b1 =600 h =1610 r =11
| 不。 |
总传热面积(㎡) |
板数量 |
L(毫米) |
D |
一个 |
A1 |
重量 |
| 1 |
25 |
51 |
235 |
605 |
415 |
830 |
893/940 |
| 2 |
30. |
61 |
281 |
650 |
461 |
900 |
935/985 |
| 3. |
35 |
71 |
327 |
700 |
507 |
985 |
978/1033 |
| 4 |
40 |
81 |
373 |
745 |
553 |
1055 |
1020/1078 |
| 5 |
45 |
91 |
419 |
800 |
599 |
1140 |
1063/1125 |
| 6 |
50 |
101 |
465 |
835 |
645 |
1210 |
1105/1171 |
| 7 |
55 |
111 |
511 |
880 |
691 |
1295 |
1147/1219 |
| 8 |
60 |
121 |
557 |
930 |
737 |
1370 |
1190/1265 |
| 9 |
65 |
131 |
603 |
975 |
783 |
1450 |
1232/1312 |
| 10 |
70 |
141 |
649 |
1020 |
829 |
1525 |
1275/1358 |
| 11 |
75 |
151 |
695 |
1065 |
875 |
1605 |
1317/1405 |
| 12 |
80 |
161 |
741 |
1110 |
921 |
1680 |
1359/1450 |
| 13 |
85 |
171 |
787 |
1160 |
967 |
1765 |
1400/1498 |
| 14 |
90 |
181 |
833 |
1205 |
1013 |
1835 |
1445/1543 |
BR0.35系列
| 板的大小 |
1218×390×0.6 |
| 单一板传热面积:㎡ |
0.35 |
| 板间距:毫米 |
4.6 |
| 单通道截面面积:㎡ |
0.00127 |
| 最大容量:m³/ h |
30 - 150 |
| 法兰直径:DN mm |
One hundred. |
| 操作温度:℃ |
≤180 |
| 操作压力:MPa |
0.6, 1.0 |
| 角孔直径:毫米 |
One hundred. |
B=395 c =1190 f =150 e =218 b1 =485 h =1315 r =11
| 不。 |
总传热面积(㎡) |
板数量 |
L(毫米) |
D |
一个 |
A1 |
重量 |
| 1 |
15 |
45 |
207 |
550 |
387 |
765 |
470/501 |
| 2 |
16 |
47 |
216 |
555 |
396 |
775 |
476/508 |
| 3. |
18 |
53 |
244 |
585 |
424 |
825 |
494/527 |
| 4 |
20. |
59 |
271 |
610 |
451 |
835 |
511/546 |
| 5 |
22 |
65 |
299 |
640 |
479 |
920 |
528/564 |
| 6 |
24 |
71 |
326 |
665 |
506 |
970 |
545/582 |
| 7 |
25 |
73 |
336 |
675 |
516 |
980 |
551/589 |
| 8 |
26 |
77 |
354 |
695 |
534 |
1015 |
563/660 |
| 9 |
28 |
81 |
372 |
715 |
552 |
1040 |
580/620 |
| 10 |
30. |
87 |
400 |
740 |
580 |
1085 |
590/633 |
| 11 |
35 |
101 |
464 |
805 |
644 |
1195 |
637/683 |
| 12 |
40 |
117 |
538 |
880 |
718 |
1320 |
677/726 |
| 13 |
45 |
131 |
602 |
945 |
782 |
1435 |
718/770 |
| 14 |
50 |
145 |
667 |
1005 |
847 |
1545 |
758/814 |
BR0.2系列
| 板的大小 |
856×326×0.5 |
| 单一板传热面积:㎡ |
0.208 |
| 板间距:毫米 |
4.1 |
| 单通道截面面积:㎡ |
0.00103 |
| 最大容量:m³/ h |
60 |
| 法兰直径:DN mm |
65 |
| 操作温度:℃ |
≤180 |
| 操作压力:MPa |
0.6, 1.0 |
| 角孔直径:毫米 |
67 |
B、c、f、e、d、c、d
| 不。 |
总传热面积(㎡) |
板数量 |
L(毫米) |
D |
一个 |
A1 |
重量 |
| 1 |
5 |
27 |
110 |
410 |
230 |
575 |
198/225 |
| 2 |
6 |
31 |
127 |
430 |
247 |
605 |
207/235 |
| 3. |
7 |
37 |
151 |
450 |
271 |
650 |
213/241 |
| 4 |
8 |
41 |
168 |
470 |
288 |
670 |
222/250 |
| 5 |
9 |
47 |
192 |
490 |
312 |
715 |
228/257 |
| 6 |
10 |
51 |
209 |
510 |
329 |
745 |
237/267 |
| 7 |
12 |
61 |
250 |
550 |
370 |
810 |
252/281 |
| 8 |
15 |
77 |
315 |
610 |
435 |
925 |
272/305 |
| 9 |
16 |
81 |
332 |
630 |
452 |
950 |
280/313 |
| 10 |
18 |
91 |
373 |
675 |
493 |
1020 |
296/330 |
| 11 |
20. |
101 |
414 |
715 |
534 |
1085 |
311/346 |
| 12 |
22 |
113 |
463 |
765 |
583 |
1170 |
326/362 |
| 13 |
24 |
121 |
496 |
795 |
616 |
1220 |
340/378 |
| 14 |
25 |
127 |
521 |
820 |
641 |
1265 |
346/385 |
BR0.1系列
| 板的大小 |
612×266×0.5 |
| 单一板传热面积:㎡ |
0.109 |
| 板间距:毫米 |
4.0 |
| 单通道截面面积:㎡ |
0.000748 |
| 最大容量:m³/ h |
3-35 |
| 法兰直径:DN mm |
40 |
| 操作温度:℃ |
≤180 |
| 操作压力:MPa |
0.6, 1.0 |
| 角孔直径:毫米 |
50 |
B=280 c =592 f =96 e =156 b1 =340 h =680 r =9
| 不。 |
总传热面积(㎡) |
板数量 |
L(毫米) |
D |
一个 |
重量 |
| 1 |
2 |
21 |
84 |
240 |
194 |
104 |
| 2 |
3. |
31 |
124 |
280 |
234 |
113 |
| 3. |
4 |
41 |
164 |
320 |
274 |
122 |
| 4 |
5 |
51 |
204 |
360 |
314 |
130 |
| 5 |
6 |
61 |
244 |
400 |
354 |
140 |
| 6 |
7 |
71 |
284 |
440 |
394 |
149 |
| 7 |
8 |
81 |
324 |
480 |
434 |
158 |
| 8 |
9 |
91 |
364 |
520 |
474 |
167 |
| 9 |
10 |
101 |
404 |
560 |
514 |
176 |
| 10 |
11 |
111 |
444 |
600 |
554 |
185 |
| 11 |
12 |
121 |
484 |
640 |
594 |
194 |
| 12 |
13 |
131 |
524 |
680 |
634 |
203 |
| 13 |
14 |
141 |
564 |
720 |
674 |
212 |
BR0.05系列
| 板的大小 |
495×165×0.5 |
| 单一板传热面积:㎡ |
0.051 |
| 板间距:毫米 |
3.6 |
| 单通道截面面积:㎡ |
0.000547 |
| 最大容量:m³/ h |
2 - 30 |
| 法兰直径:DN mm |
25 |
| 操作温度:℃ |
≤180 |
| 操作压力:MPa |
0.6, 1.0 |
| 角孔直径:毫米 |
32 |
B=175 c =515 f =85 e =96 b1 =225 h =575 r =7
| 不。 |
总传热面积(㎡) |
板数量 |
L(毫米) |
D |
一个 |
重量 |
| 1 |
0.5 |
11 |
40 |
240 |
130 |
53 |
| 2 |
0.75 |
17 |
61 |
260 |
151 |
56 |
| 3. |
1.0 |
21 |
76 |
275 |
166 |
58 |
| 4 |
1.5 |
31 |
112 |
310 |
202 |
62 |
| 5 |
2.0 |
41 |
148 |
350 |
238 |
67 |
| 6 |
2.5 |
51 |
184 |
385 |
274 |
71 |
| 7 |
3.0 |
61 |
220 |
420 |
310 |
76 |
| 8 |
3.5 |
71 |
256 |
455 |
346 |
80 |
| 9 |
4 |
81 |
292 |
490 |
382 |
85 |
| 10 |
4.5 |
91 |
328 |
530 |
418 |
89 |
| 11 |
5 |
101 |
364 |
565 |
454 |
94 |
如果你有任何问题,请不要客气
联系我们.